



-p-500.jpg)

-p-500.jpg)
-p-500.jpg)


-p-500.jpg)
-p-500.jpg)



.png)


.webp)







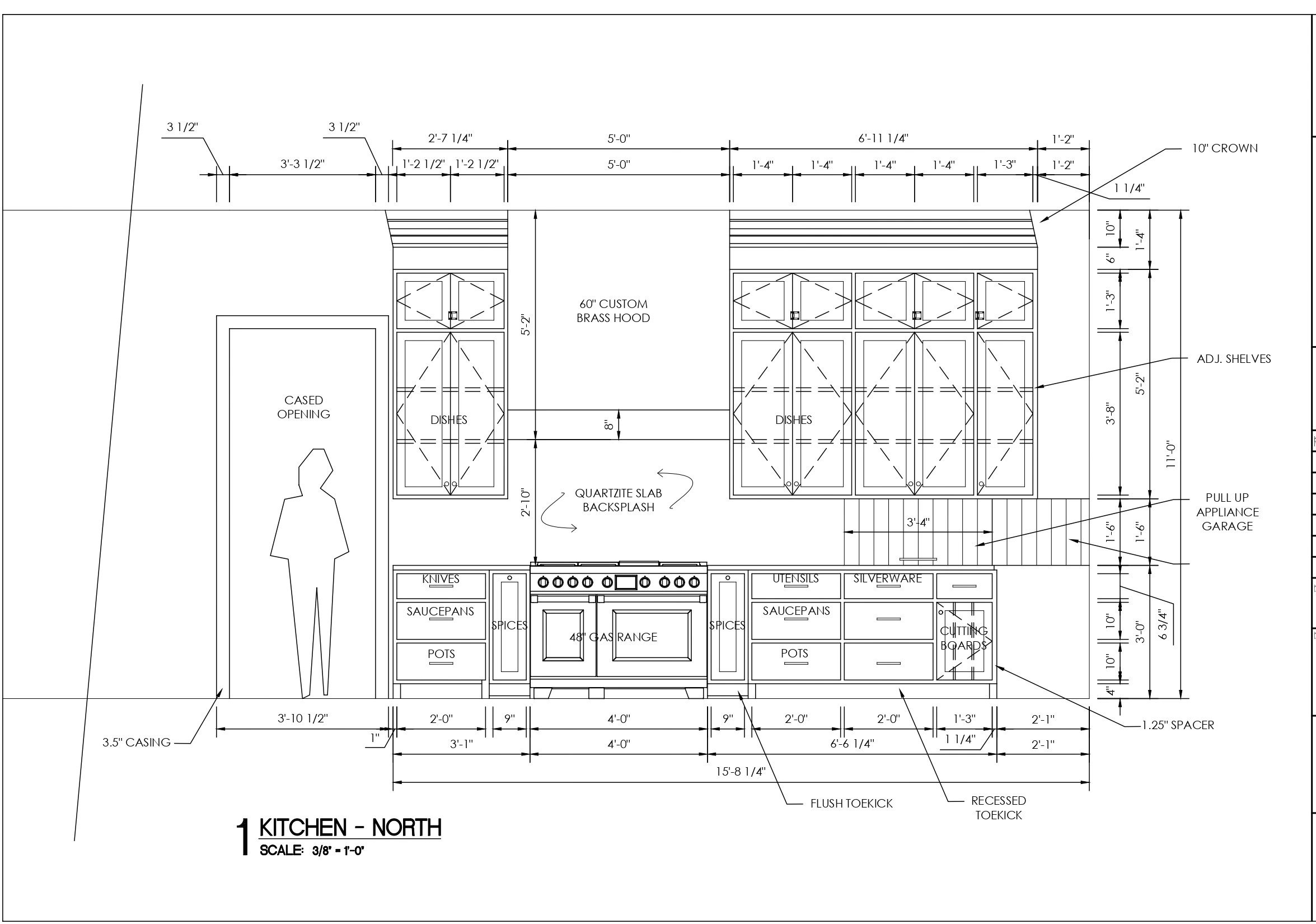
We crafted a brass vent hood cover as the centerpiece of the kitchen. To ensure it aligned with the client’s vision and fit seamlessly into its place with exacting detail, we maintained thorough communication supported by images and regular site reports.
The soft base of the hood was delicately handcrafted to naturally flow with the kitchen interior, bringing out the quiet balance to the design.
We carefully engineered and refined each joint to reveal the desired subtle vintage glow. Each curve was patinated under controlled light to bring out its warm character. Then we sealed it with a satin clear coat for a timeless finish.
We also installed a custom stainless-steel transition piece to complete the look with smooth, whisper-quiet ventilation.
We thoroughly checked and fine-tuned each detail, including the crisp cabinet trims and seamless backsplash line for a refined, cohesive, and effortlessly inviting kitchen tone.
The make-up air system was integrated into the hood to allow direct air replacement from the higher CFM air draw that this appliance can deliver. A baffling system was added to ensure it only opens when needed, preventing Texas heat or interior AC drift from escaping passively.


The make-up air system was integrated into the hood to allow direct air replacement from the higher CFM air draw that this appliance can deliver. A baffling system was added to ensure it only opens when needed, preventing Texas heat or interior AC drift from escaping passively.

To effectively house the client’s smart appliances, we crafted a hidden appliance garage behind the former pantry and transformed the powder bath into a fully functional pantry.
We re-routed the plumbing, integrated custom cabinetry, and installed countertops with discreet storage before completing the drywall finish.
The result delivered the smart, efficient storage the family needed without interrupting the kitchen’s flow – becoming one of the most admired features of the remodel.

To effectively house the client’s smart appliances, we crafted a hidden appliance garage behind the former pantry and transformed the powder bath into a fully functional pantry.
We re-routed the plumbing, integrated custom cabinetry, and installed countertops with discreet storage before completing the drywall finish.
The result delivered the smart, efficient storage the family needed without interrupting the kitchen’s flow – becoming one of the most admired features of the remodel.
Our thorough mold inspection revealed only one area that needs treatment, which we addressed after repairing an uncapped clean-out pipe.
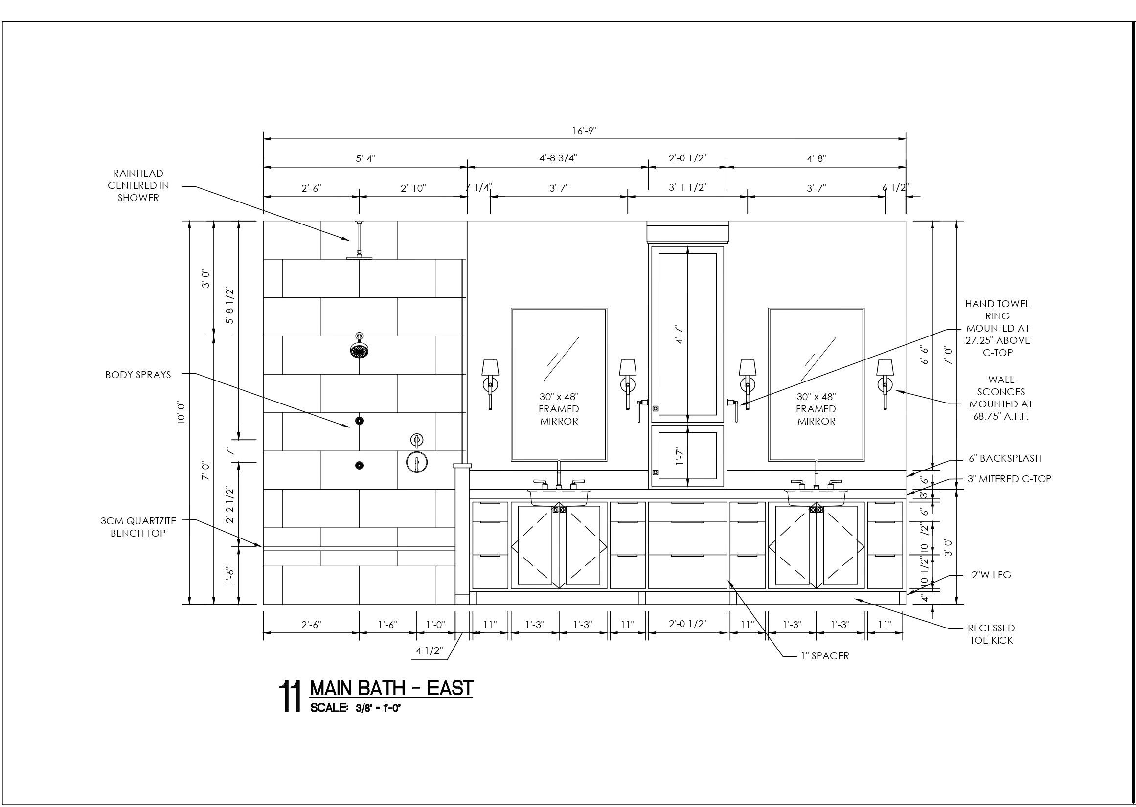
In the primary bath, we installed multiple shower nozzles and body sprayers for a spa-inspired experience. The daughter’s bathroom was redesigned with a brighter palette, graceful finishes, and a custom inset storage niche.


Our thorough mold inspection revealed only one area that needs treatment, which we addressed after repairing an uncapped clean-out pipe.
In the primary bath, we installed multiple shower nozzles and body sprayers for a spa-inspired experience. The daughter’s bathroom was redesigned with a brighter palette, graceful finishes, and a custom inset storage niche.

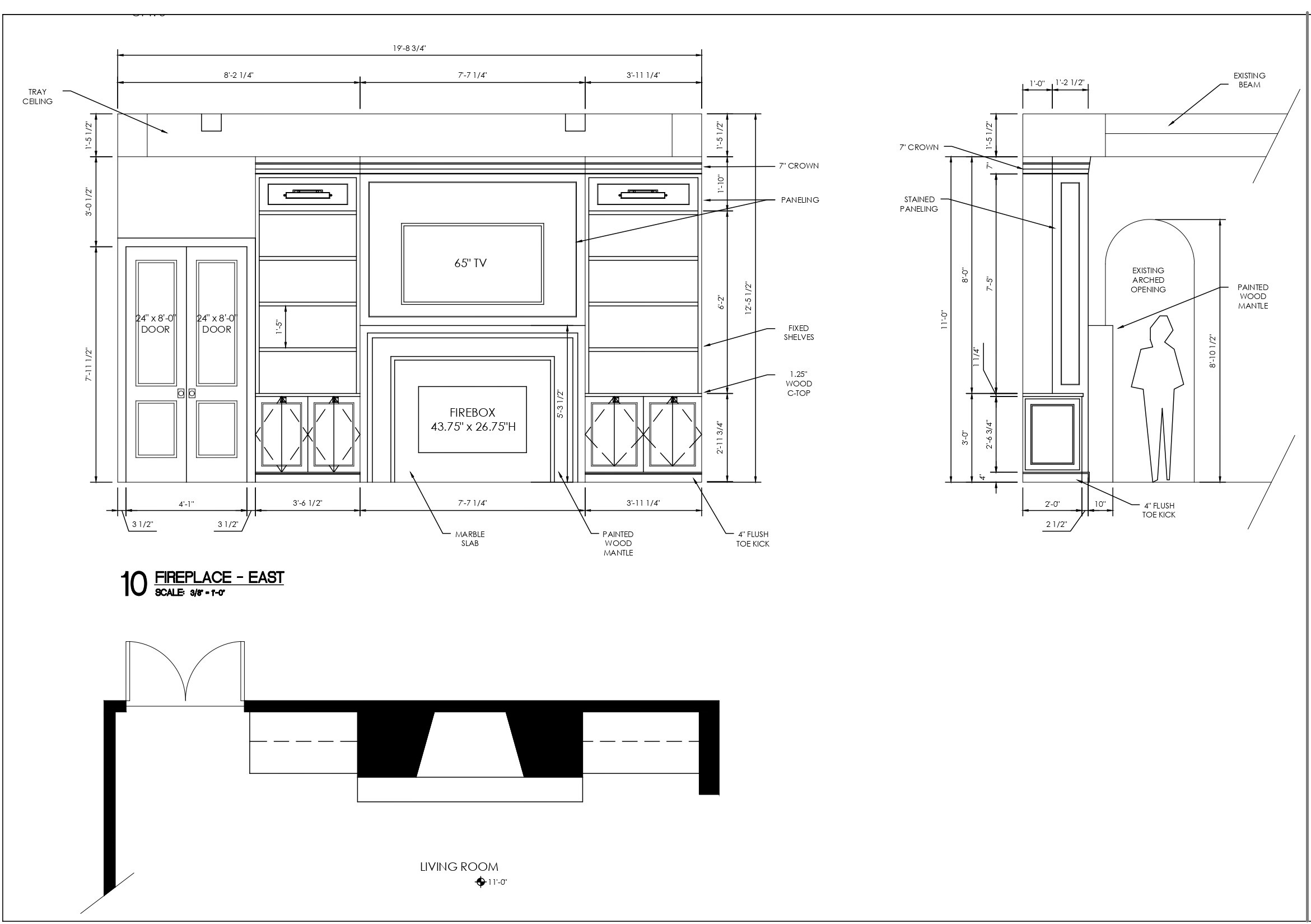
A marble and millwork fireplace with a flush hearth was seamlessly integrated into the shared living spaces, complemented by new wood flooring.
The custom built-ins paired with warm sconce lighting created a welcoming yet elegant atmosphere.
Even the meticulous drywall and paint repairs brought every corner together, unifying the home into a cohesive, harmonious whole.
As the project neared completion, every detail was executed with precision. From drywall patches and cabinet touch-ups to crown caulking and seam sealing.
We installed the shower seams, expertly caulked the backsplashes, adjusted the cabinetry, and tested HVAC systems for optimal airflow.
We provided updates and progress photos every step of the way so our clients always felt in the loop and confident in how things were coming together.


As the project neared completion, every detail was executed with precision. From drywall patches and cabinet touch-ups to crown caulking and seam sealing.
We installed the shower seams, expertly caulked the backsplashes, adjusted the cabinetry, and tested HVAC systems for optimal airflow.
We provided updates and progress photos every step of the way so our clients always felt in the loop and confident in how things were coming together.








